Modernes Dachbad mit beleuchtetem Waschtisch, Glasdusche und Badewanne in hellen Naturtönen, umgesetzt von der Nessmann Bad & Heizung GmbH.

Sanierung eines Dachgeschossbades in Jüchen

Dieses Dachgeschossbad überzeugt durch eine intelligente Raumlösung unter Schrägen, kombiniert mit moderner Sanitärtechnik, effizienter Heizung und durchdachter Beleuchtung zu einem funktionalen und stilvollen Badkonzept.

Modernes Badezimmer mit bodengleicher Glasdusche, freistehender Badewanne und Dachfenster, realisiert von der Nessmann Bad & Heizung GmbH.

Überblick

Das Bad vereint individuelle Maßanfertigungen mit hochwertigen Materialien und zeitgemäßer Technik. Harmonisch abgestimmte Details und wohlüberlegte Komfortlösungen sorgen für eine stimmige, angenehme Atmosphäre.

 

Bild
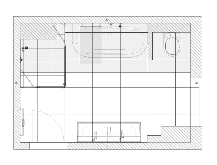
ICON Skizze eines Grundrisses.

Fläche

10 m²

Bild
ICON das drei schwarze, unterschiedlich große Sterne zeigt.

Stil

minamalistisch, modern, architektonisch

Bild
ICON leuchtende Glühbirne

Besonderheiten

Doppelwaschtisch, Fußbodenheizung, Fliesen in Grautönen

Individuelle Planung bis ins Detail

  • Doppelwaschtisch mit beleuchteten Glasfronten und maßgefertigten Möbeln von BMF, Armaturen von Jörger
  • Unterputzarmaturen von Hansgrohe für Badewanne und Dusche
  • Bodengleiche Dusche mit Sanftläuferpumpe und Sitzfläche aus Naturstein
  • WC von TOTO (Serie RP), hinter gefliestem Raumtrenner mit Natursteinablage
  • Halb freistehende, platzsparende Badewanne von Repabad für eine leichte Raumwirkung
  • Maßgefertigte, profillose Duschabtrennung von Duscholux, angepasst an die Dachschräge (Collection P)

Effiziente Planung

Das Bad zeigt eine klare und funktionale Anordnung von Dusche, Badewanne, Doppelwaschtisch und WC unter Berücksichtigung der Dachschräge. Die durchdachte Planung sorgt für optimale Raumnutzung, großzügige Bewegungsflächen und hohen Komfort im Dachgeschossbad.

 

Technische Grundrisszeichnung eines Badezimmers mit Dusche, Badewanne, Doppelwaschtisch und WC als Planungsgrundlage der Nessmann Bad & Heizung GmbH.
Modernes Dachbad mit beleuchtetem Waschtisch, Glasdusche und Badewanne in hellen Naturtönen, umgesetzt von der Nessmann Bad & Heizung GmbH.

Daten und Fakten

Typ: Dachgeschossbad
Kategorie: Premium
Kosten:  €€€€€*
Größe: 10 m²
Badplanung: Gabriela Nessmann
Besonderheiten: bodenebene Dusche,  elektrische Fußbodenheizung,  Effektbeleuchtung

*Erläuterung s.:

Was kostet ein Bad?
Kontaktieren Sie uns
Ihr Weg zum neuen Bad
Sie möchten Ihr Badezimmer modernisieren? Wir beraten Sie gern. Rufen Sie uns einfach an oder schicken Sie uns eine Online-Anfrage:
Badezimmer-Anfragen
Axel Nessmann – Ein selbstbewusster Geschäftsmann mittleren Alters mit grauem Haar und blauem Sakko lächelt professionell in einem modernen Büroumfeld. Er lehnt an einer Glaswand, sein Spiegelbild ist sichtbar, was seine Präsenz unterstreicht.
Das könnte Sie auch interessieren

Weitere Informationen zum Thema Badrenovierung finden Sie hier: 

Ein Badplaner betrachtet auf einem Computerbildschirm detaillierte 3D-Modelle und Grundrisse eines Badezimmers. Er arbeitet an der digitalen Planung zur optimalen Beratung.

Bad­pla­nung vom Pro­fi

Unsere Badexperten erstellen Pläne, auf deren Grundlage das Bad ganzheitlich gestaltet werden kann. Am Ende steht ein Bad, das niemals von der Stange ist.

Badplanung
Ein modernes, minimalistisches Badezimmer mit einer bodenebenen Dusche und einer gläsernen Duschabtrennung.

Die pas­sen­de Du­sche für Sie

Eine Dusche bietet nicht nur schnelle Reinigung, sondern auch kostbare Momente der Entspannung und Erneuerung. 

Dusche
Helles Premium-Badezimmer mit gemusterten Fliesen von der Firma Dreyer.

Ihr Weg zum Traumbad

Ob Beratung, Planung, die Erstellung eines individuellen Raumplanungskonzeptes oder letztlich die Installation des Bades, wir kümmern uns um die fachgerechte Umsetzung Ihres Traumbads.

Ablauf Badumbau