Detailansicht des Waschtischbereichs mit Doppelbecken, Wandarmaturen und Fensterlicht, realisiert durch die Nessmann Bad & Heizung GmbH.

Moderner Landhausstil mit skandinavischem Touch in Düsseldorf-Itter

Diese Badgestaltung im Landhausstil verbindet klassische Formen, hochwertige Materialien und moderne Technik zu einem zeitlosen und wohnlichen Raumkonzept.

 

Klassisch gestaltetes Badezimmer mit Doppelwaschtisch, zwei Wandspiegeln und wandhängendem WC, geplant von der Nessmann Bad & Heizung GmbH.

Überblick

Das Landhausbad verbindet klassische Gestaltungselemente mit maßgefertigten Möbeln und hochwertiger Sanitärtechnik. Natürliche Materialien, harmonische Farbwelten und durchdachte Komfortlösungen schaffen eine warme, zeitlose Atmosphäre mit hohem Wohnwert.

Bild
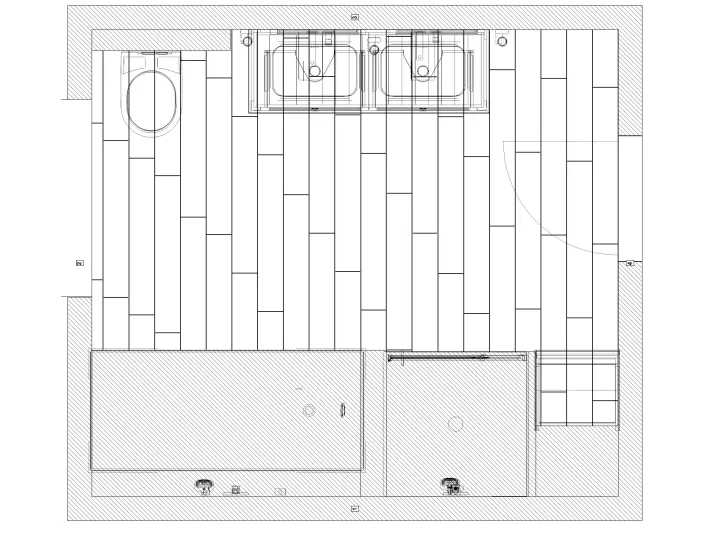
ICON Skizze eines Grundrisses.

Fläche

9,5 m²

Bild
ICON das drei schwarze, unterschiedlich große Sterne zeigt.

Stil

dezent, rustikal, hell

Bild
ICON leuchtende Glühbirne

Besonderheiten

helle Holzoptik, Fußbodenheizung, Doppelwaschtisch

Zeitlose Eleganz mit klarer Linie

  • Doppelwaschtisch mit ausreichend Platz für zwei Personen, Möbel von Vitra
  • Symmetrisch gestalteter Waschplatz für ein aufgeräumtes, elegantes Gesamtbild
  • Unterputzarmaturen von Hansgrohe in Schwarz Matt, Serie Metropol
  • Dusche und Badewanne aus Edelstahl von Bette mit rutschhemmender Sense-Beschichtung, Wannenfüllung über Ab- und Überlauf
  • WC von TOTO, Serie NC
  • Fußbodenheizung ersetzt einen klassischen Heizkörper
  • Duschabtrennung von HSK mit Elementen in Schwarz Matt
  • Die vorhandenen Spiegel und Leuchten wurden aus dem vorherigen Bad übernommen

Raumkonzept für das Landhausbad

Das Badezimmmer zeigt eine klare und funktionale Raumaufteilung mit Doppelwaschtisch, Badewanne, Dusche und WC. Die strukturierte Planung schafft großzügige Bewegungsflächen und bildet die Grundlage für das harmonische Badkonzept im Landhausstil.

Grundriss des Landhausstil-Badezimmers mit Doppelbecken, Wandarmaturen und Fensterlicht.
Detailansicht des Waschtischbereichs mit Doppelbecken, Wandarmaturen und Fensterlicht, realisiert durch die Nessmann Bad & Heizung GmbH.

Daten und Fakten

Typ: Landhausbad
Kategorie: Comfort
Kosten: €€€*
Größe: 9,5 m²
Badplanung: Jannik Nessmann
Besonderheiten: bodenebene Dusche,  Fußbodenheizung, Holzoptik

*Erläuterungen s.:

Was kostet ein Bad?
Kontaktieren Sie uns
Ihr Weg zum neuen Bad
Sie möchten Ihr Badezimmer modernisieren? Wir beraten Sie gern. Rufen Sie uns einfach an oder schicken Sie uns eine Online-Anfrage:
Badezimmer-Anfragen
Axel Nessmann – Ein selbstbewusster Geschäftsmann mittleren Alters mit grauem Haar und blauem Sakko lächelt professionell in einem modernen Büroumfeld. Er lehnt an einer Glaswand, sein Spiegelbild ist sichtbar, was seine Präsenz unterstreicht.
Das könnte Sie auch interessieren

Weitere Informationen zum Thema Badrenovierung finden Sie hier: 

Badexpertin bei der Badplanung am Tablet.

Ihr Bad ist so einzigartig wie Sie. Mit einer individuellen Badplanung wird Ihre erträumte Wellnessoase Realität. Jetzt informieren, bald applaudieren.

Badplanung
Komplettbad mit Alta

Wir planen, organisieren und koordinieren sämtliche Arbeiten aller Gewerke. Der Vorteil für Sie: Alles kommt aus einer Hand.

Komplettbad
Modernes Badezimmer mit Holzwaschtisch und Stuhl.

Finden Sie mit unseren Bad-Experten Ihr Traumbad, das Ihren persönlichen Stil perfekt widerspiegelt.

Badstile