Helles Badezimmer mit Waschtisch, WC, Badewanne und beleuchteten Wandnischen, umgesetzt von der Nessmann Bad & Heizung GmbH.

Wellnessbadezimmer in Düsseldorf-Kaiserswerth

Dieses Wellnessbad kombiniert durchdachte Grundrissplanung, innovative Dusch- und Dampftechnik, intelligente Heiz- und Lichtlösungen sowie hochwertige Sanitärausstattung zu einem funktionalen und komfortorientierten Raumkonzept.

Helles Badezimmer mit Waschtisch, WC, Badewanne und beleuchteten Wandnischen, umgesetzt von der Nessmann Bad & Heizung GmbH.

Überblick

Das Wellnessbad überzeugt mit hellen Naturtönen, klaren Formen und einer harmonischen Materialauswahl. Badewanne und Glasdusche sorgen für Komfort, beleuchtete Wandnischen setzen stilvolle Akzente. Gäste-WC und Flur wurden gestalterisch an das Bad angepasst und runden das stimmige Gesamtkonzept ab.

Bild
ICON Skizze eines Grundrisses.

Fläche

6,5 m²

Bild
ICON das drei schwarze, unterschiedlich große Sterne zeigt.

Stil

elegant, klassisch-modern

Bild
ICON leuchtende Glühbirne

Besonderheiten

Doppelwaschtisch, Gäste-WC, Natursteinoptik

Hochwertige Ausstattung

  • Doppelwaschtisch für zwei Personen mit Keramik von Ideal Standard, Möbeln von BMF und Armaturen von Jörger
  • WC von TOTO, Serie NC
  • Auf- und Unterputzarmaturen von Hansgrohe für Wanne und Dusche, Wannenbefüllung über Ab- und Überlauf
  • Bodengleiche Dampfdusche von Artweger mit Licht und Musik
  • Wandnischen als Blickfang mit Effektfliese von Settecento
  • Fliesen in Natursteinoptik (Crema Marfil) sowie Sitzbank und Ablagen aus echtem Naturstein
  • Effektbeleuchtung unterhalb von WC und Wanne, ideal als Nachtlicht nutzbar

Raumaufteilung für höchsten Komfort

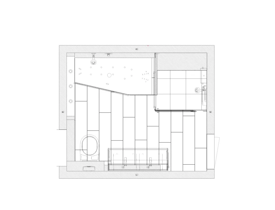
Der Grundriss zeigt die großzügige Planung des Wellnessbads mit bodenebener Dampfdusche, Whirlpoolbadewanne und klar gegliederten Funktionsbereichen. Die offene Anordnung sorgt für fließende Übergänge, viel Bewegungsfreiheit und ein stimmiges Wohlfühlkonzept.

Technischer Badezimmergrundriss mit eingezeichneter Dusche, Badewanne, WC und Waschtisch als Planungsleistung der Nessmann Bad & Heizung GmbH.
Großzügiges Badezimmer mit bodengleicher Glasdusche, Badewanne, Waschtisch und warmen Lichtakzenten, umgesetzt von der Nessmann Bad & Heizung GmbH.

Daten und Fakten

Typ: Wellnessbad
Kategorie: Premium
Kosten: €€€€€*
Größe: 6,5 m²
Badplanung: Gabriela Nessmann
Besonderes: Dampfdusche, Whirlpool,  Natursteinoptik

*Erläuterung s.:

Was kostet ein Bad?
Kontaktieren Sie uns
Ihr Weg zum neuen Bad
Sie möchten Ihr Badezimmer modernisieren? Wir beraten Sie gern. Rufen Sie uns einfach an oder schicken Sie uns eine Online-Anfrage:
Badezimmer-Anfragen
Axel Nessmann – Ein selbstbewusster Geschäftsmann mittleren Alters mit grauem Haar und blauem Sakko lächelt professionell in einem modernen Büroumfeld. Er lehnt an einer Glaswand, sein Spiegelbild ist sichtbar, was seine Präsenz unterstreicht.
Das könnte Sie auch interessieren

Weitere Informationen zum Thema Badrenovierung finden Sie hier: 

Helles Premium-Badezimmer mit gemusterten Fliesen von der Firma Dreyer.

Ob Beratung, Planung, die Erstellung eines individuellen Raumplanungskonzeptes oder letztlich die Installation des Bades, wir kümmern uns um die fachgerechte Umsetzung Ihres Traumbads.

Ablauf Badumbau
Badexpertin bei der Badplanung am Tablet.

Unsere Badexperten erstellen Pläne, auf deren Grundlage das Bad ganzheitlich gestaltet werden kann. Am Ende steht ein Bad, das niemals von der Stange ist.

Badplanung
Fotomontage mit Preisschildern für die drei Budgetklassen für das Badezimmer.

Jetzt erfahren, was sich hinter Begriffen wie Economy-Bad, Komfort-Bad oder Premium-Bad verbirgt und was das für Ihre Budgetplanung bedeutet.

Badkosten